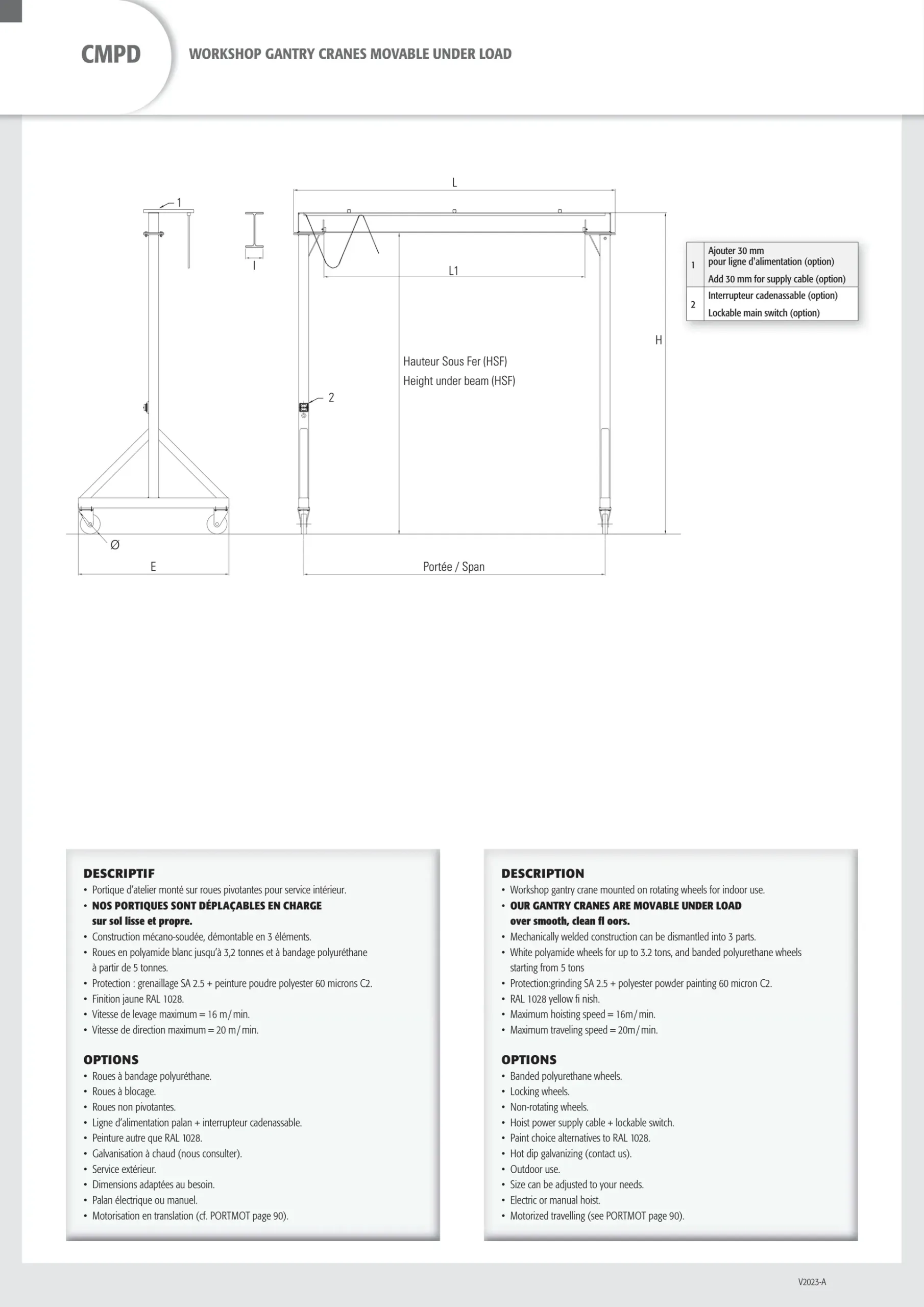
- WLL = 5000kg
- span = 7000mm
- height under beam HUB = 5500mm
- complies with EN 15011 (lifting class HC2, stability class S2)
- movable under load on smooth and clean ground
- total weight = 1725kg
- weight of one foot = 580kg
- beam weight = 565kg
- beam width l = 180mm
- total height H = 5900mm (+30mm if power line)
- length between hoist stops L1 = 6000mm
- total length L = 7400mm
- total width E = 2500mm
- wheels Ø300mm
- polyester powder paint 60 microns equivalent category C2





















