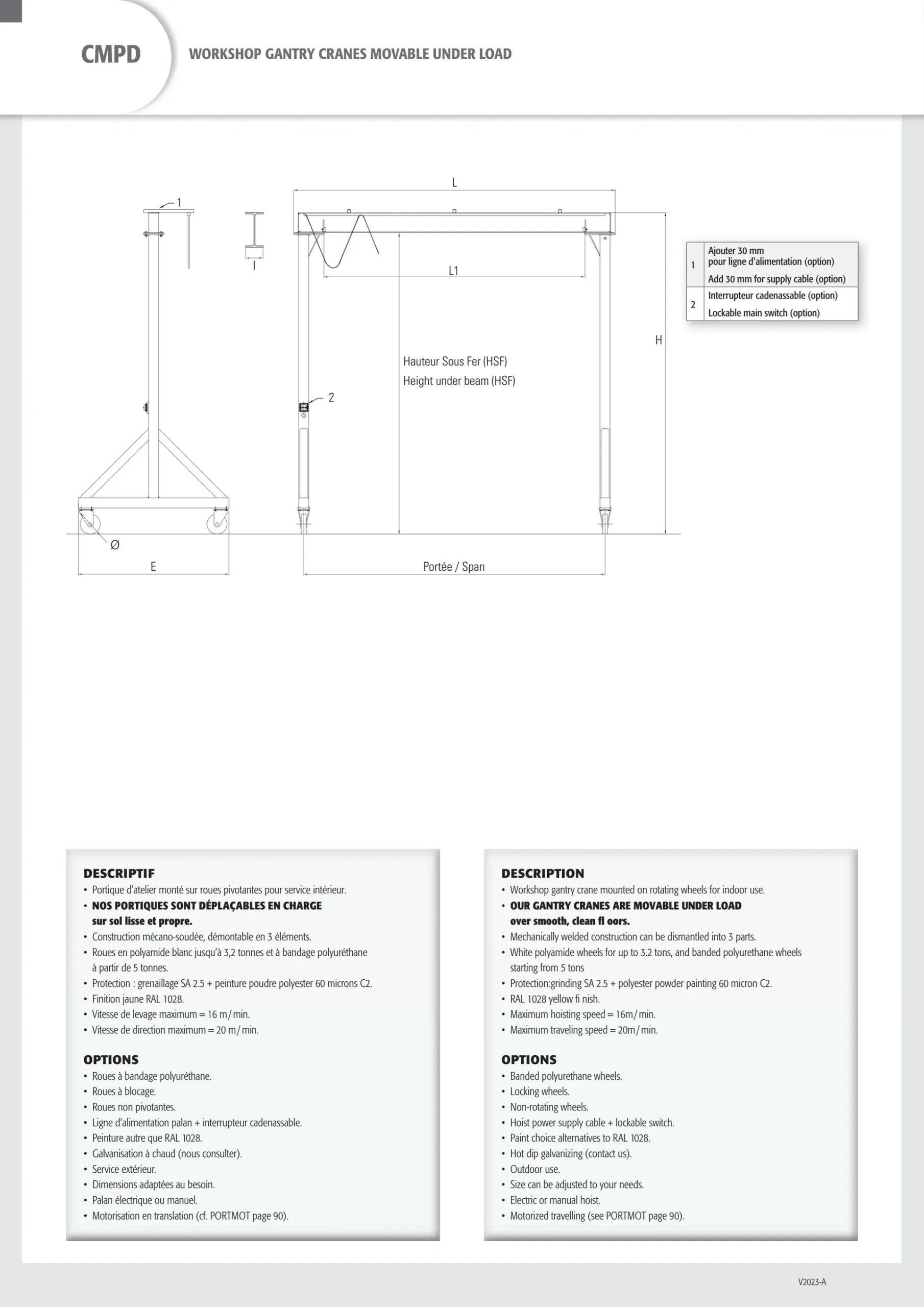
- WLL = 1600kg
- span = 7500mm
- height under beam HUB = 5000mm
- complies with EN 15011 (lifting class HC2, stability class S2)
- movable under load on smooth and clean ground
- total weight = 771kg
- weight of one foot = 229kg
- beam weight = 313kg
- beam width l = 135mm
- total height H = 5270mm (+30mm if power line)
- length between hoist stops L1 = 6760mm
- total length L = 7760mm
- total width E = 2250mm
- wheels Ø200mm
- polyester powder paint 60 microns equivalent category C2




















